Guangxi Impression
Guangxi
2022
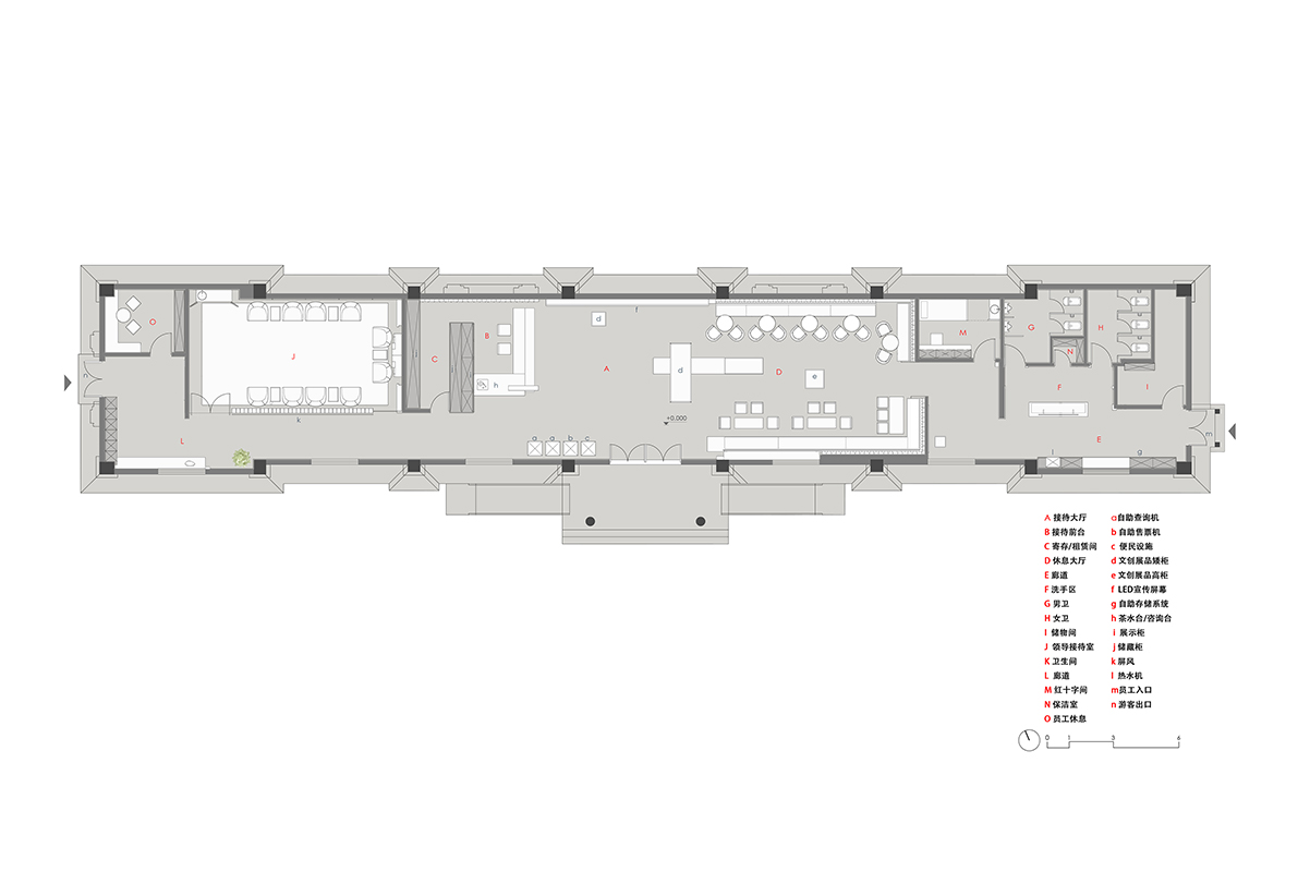
The project involves renovating the former site of the Jingjiang Prince Mansion Visitor Center into a new space that not only serves visitor reception, information, and retail functions but also conveys a contemporary atmosphere for social interaction and exhibition. Drawing from the architectural heritage of Guangxi's vernacular dwellings, we explore local imprints—extracting color palettes and material textures from traditional Chinese structures, Guangxi's ethnic costumes, the landscapes of Guilin's Li River, and its terraced fields. By deconstructing the layers of history, we bridge the past and the present, integrating them seamlessly with contemporary commercial service models and modern techniques.
Project Team
LGH DESIGN