The Growing Box
Guangzhou
2017
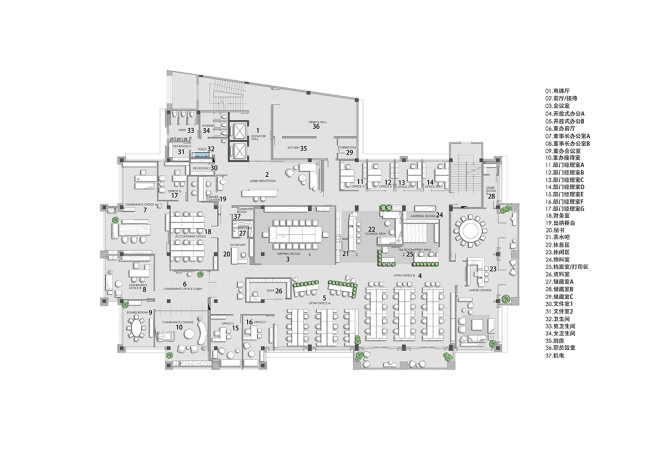
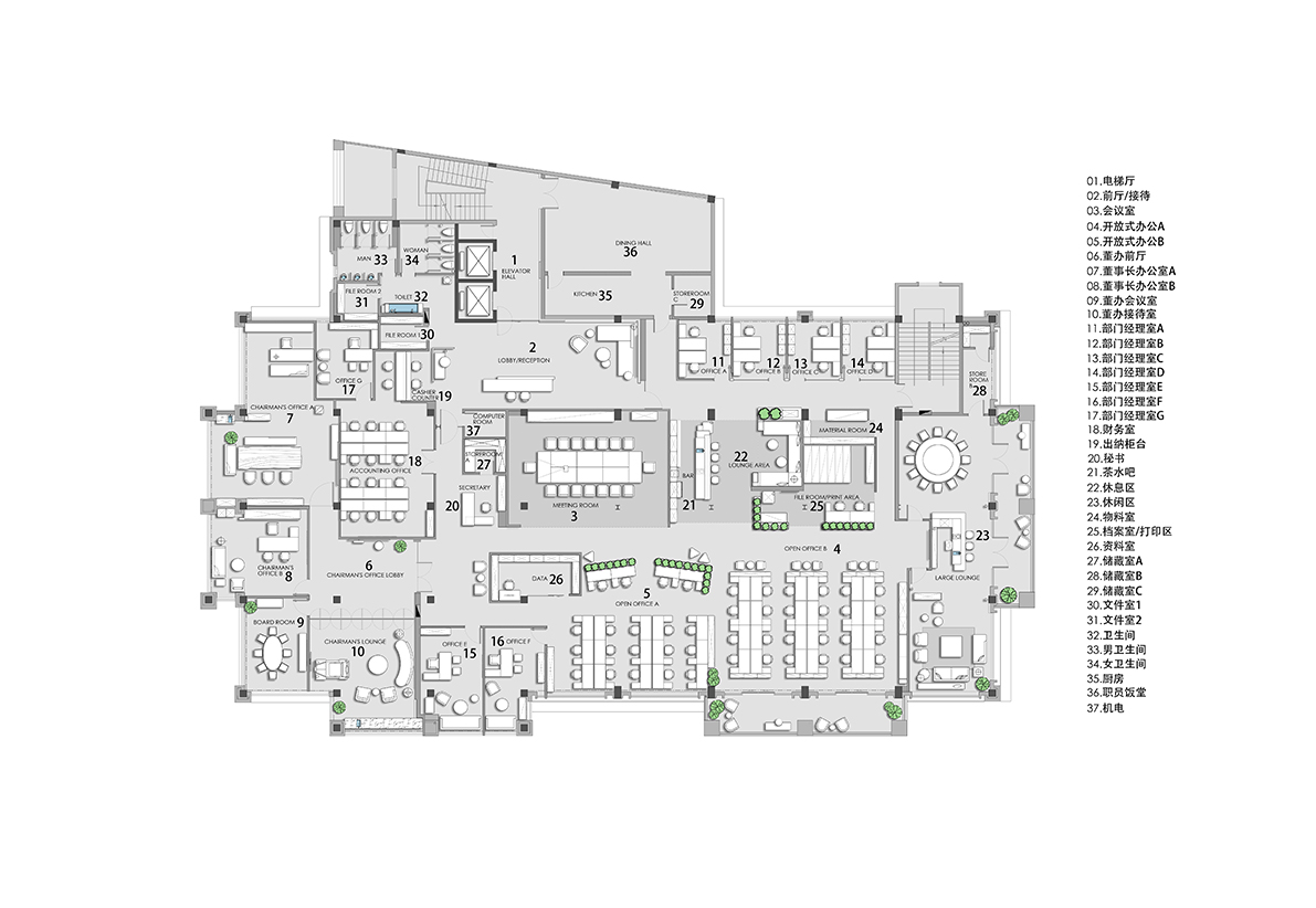
The Hongchang Construction Office, completed within just two months from design to construction, had to balance the openness and sharing of office space with the privacy required for business departments under a strict budget. Guided by the concept of "urban construction," the design transforms various functional zones into scattered "boxes" at varying heights. The main meeting room serves as the circulation axis, radiating two loops—one public, one private. The corporate VI colors are deconstructed and integrated into the color schemes of the boxes and furniture, while the corporate logo is reinterpreted in themed artworks and light fixtures. Using steel, concrete, and timber beams as foundational materials, assembled through mortise-and-tenon joints and stacking techniques, the design embodies the spatial aesthetics of the "construction process." Through its construction logic and structural framework, the space invites continuous interaction, fostering a sense of ongoing growth within its "unfinished" state.
Project Team
LGH DESIGN